Kva er ein listefri karm?
Ei listefri karmløysing betyr at karmen blir montert plant med veggen, utan ekstra listverk. Dette krev nøyaktig montering og bruk av ein spesialtilpassa karm.
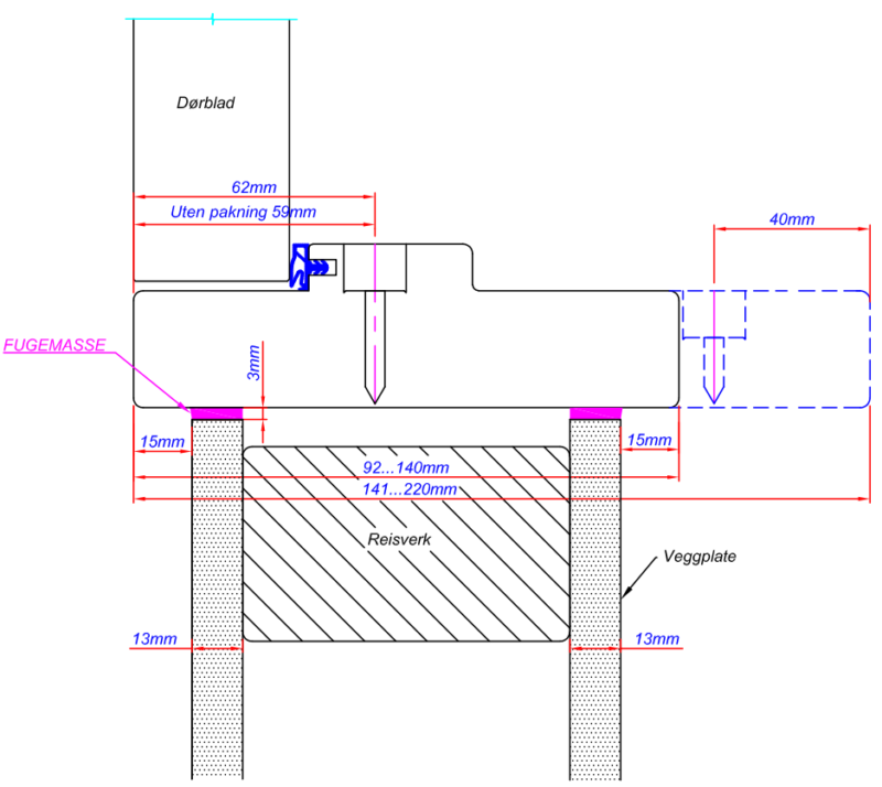
For å få ein korrekt listefri montasje blir dørkarmen produsert 15 mm djupare enn veggen, og får dermed eit utstikk på 15 mm på kvar side. Dette gjer at ein kan avslutte golvlista inn mot baksida av karmen og sette karmen heilt inn mot veggen.
Kvifor velje listefri karm?
- Moderne design: Perfekt for eit stilreint interiør.
- Visuell ro: Gir eit design der døra nesten går i eitt med veggen.
- Tidlause detaljar: Kombiner gjerne med slette eller finerte dører for ei heilskapleg løysing.
Passar til kompakte og massive innerdører
Bygg1 leverer karmsett for listefri montering som passar både til kompakte og massive innerdører. Dette gir fleksibilitet for ulike bruksområde, anten det er til bustad, hytte eller prosjektmarknaden. Løysinga kan bestillast i ulike fargar og mål, slik at ho kan tilpassast ditt prosjekt.
Teknisk informasjon
Den listefrie karmen krev nøyaktig montering og vert ofte brukt i kombinasjon med spesialløsningar frå entreprenør eller byggmeister.
Ved bruk av skjulte hengsler i kombinasjon med gerikt, vil opningsvinkelen kunne bli redusert. Vi anbefaler difor kun listefri karm framfor standard karm med gerikt når skjulte hengsler er ynskja - både av praktiske og estetiske grunnar.
- Finerte listefrie karmar er finert 20 mm inn på kvar kant av baksida, noko som gir ein elegant detalj og skjult overgang mot vegg.
- Malte listefrie karmar har heile baksida malt i same farge som framsida for eit heilskapleg uttrykk.
- Skruhola er plassert slik at dei ikkje kjem i konflikt med gipsplater - noko som forenklar monteringa.
Maks tillatte karmdybde er 220 mm

Sjå dørene som er brukt
Finn du ikkje det du leitar etter?
Chat med Dørvakta, ring oss eller bruk kontaktskjemaet.
Du kan nå oss i kontortida:
Måndag til fredag, kl. 08:00–16:00
Telefon: 70 04 24 90
Vår adresse er:
Bygg 1 Produkter AS
Industrivegen 32
N-6155 Ørsta, Norway
Kontakt oss
Chat med Dørvakta, ring oss eller bruk kontaktskjemaet.
Du kan nå oss i kontortida:
Måndag til fredag, kl. 08:00–16:00
Telefon: 70 04 24 90
Vår adresse er:
Bygg 1 Produkter AS
Industrivegen 32
N-6155 Ørsta, Norway
